Какой может быть застройка на Варшавском шоссе в Бресте
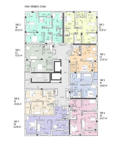
Горисполком приглашает принять участие в общественных обсуждениях архитектурно-планировочной концепции объекта. Проектным решением предусматривается строительство шести 17-ти этажных жилых домов объединенных по первому этажу помещениями общественного назначения, под магазины, кафе, парикмахерские и др.

Предусмотрено ограждение территории комплекса по периметру, для безопасности и комфорта жильцов. Дворовая территория будет насыщена детскими и спортивными площадками. Планируется зону отдыха для более взрослой категории жильцов на втором уровне встроенных помещений.
Особенно интересным решением будет наличие террас в квартирах на первом и втором этажах (8 квартир в каждом доме). На территории размещаются два паркинга со встроенными помещениями общественного назначения (магазины и офисы) на 1 и 2 этажах.










Срок проведения общественного обсуждения с 7 декабря по 21 декабря 2022 года.
Источник: onlinebrest.by
Комментарии закрыты.